Presentamos una nueva promoción de villas independientes en Aguas Nuevas, una de las zonas más valoradas de Torrevieja, situada en el sur de la provincia de Alicante. Este enclave residencial combina tranquilidad, proximidad al mar y vistas abiertas hacia la emblemática Laguna Rosa de Torrevieja, ofreciendo un estilo de vida privilegiado en plena Costa Blanca.
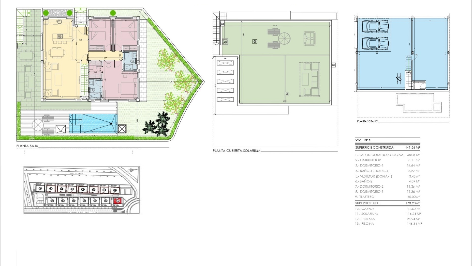
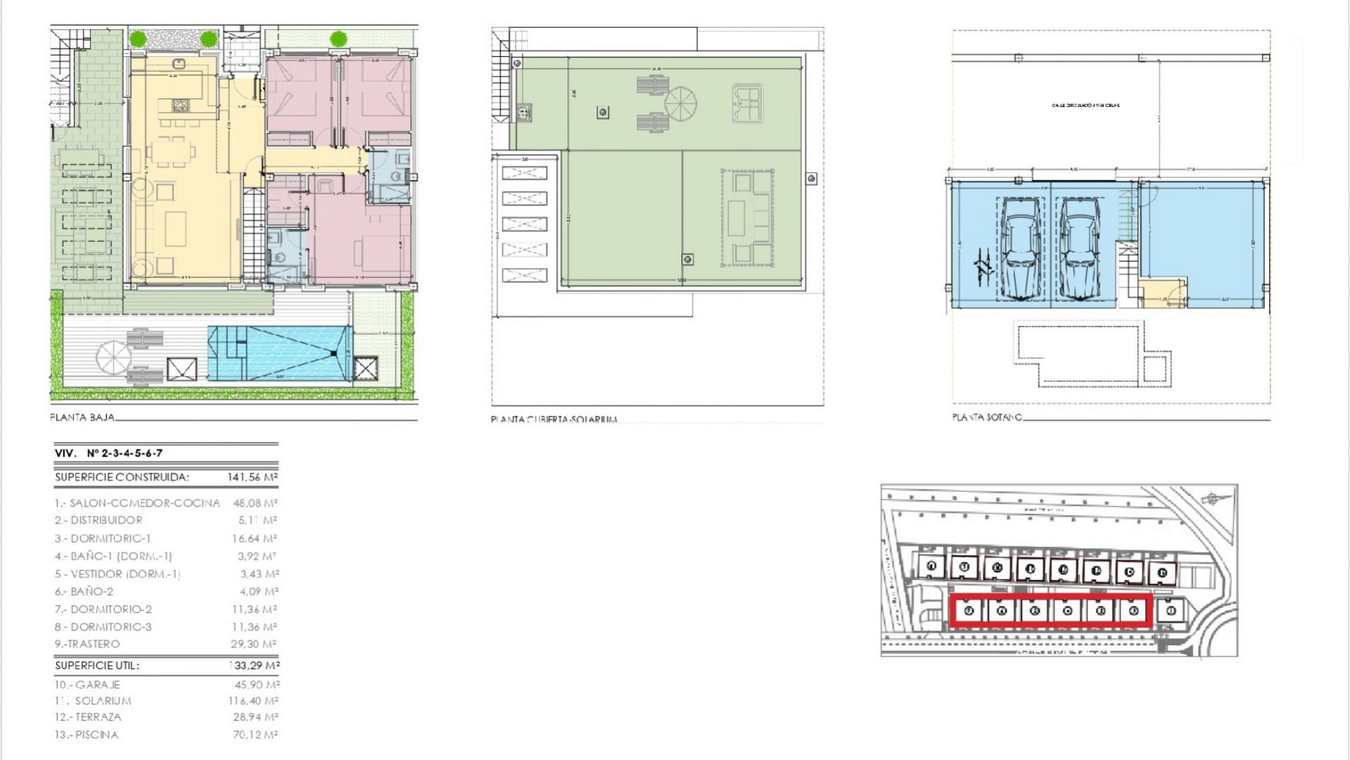
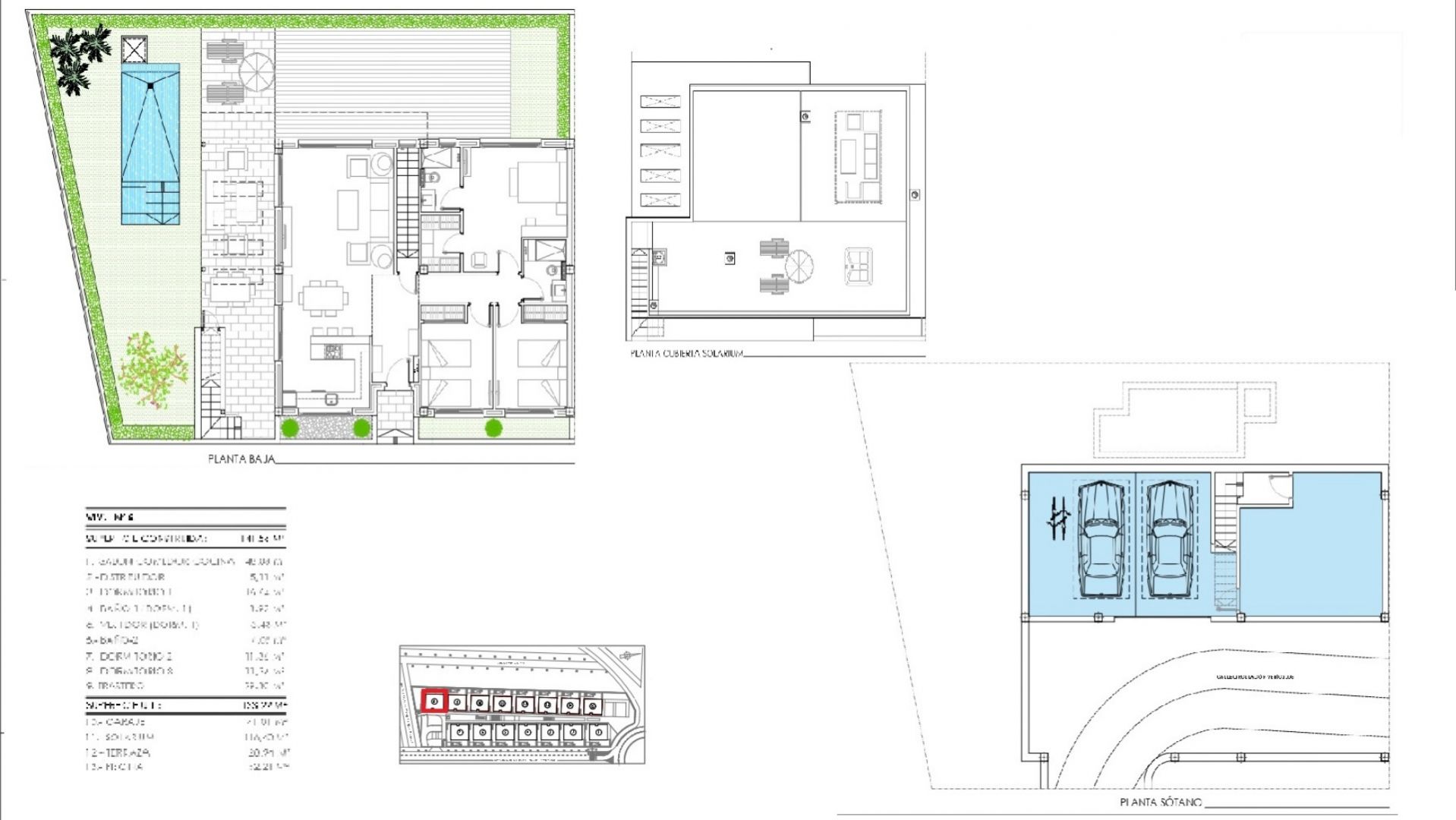
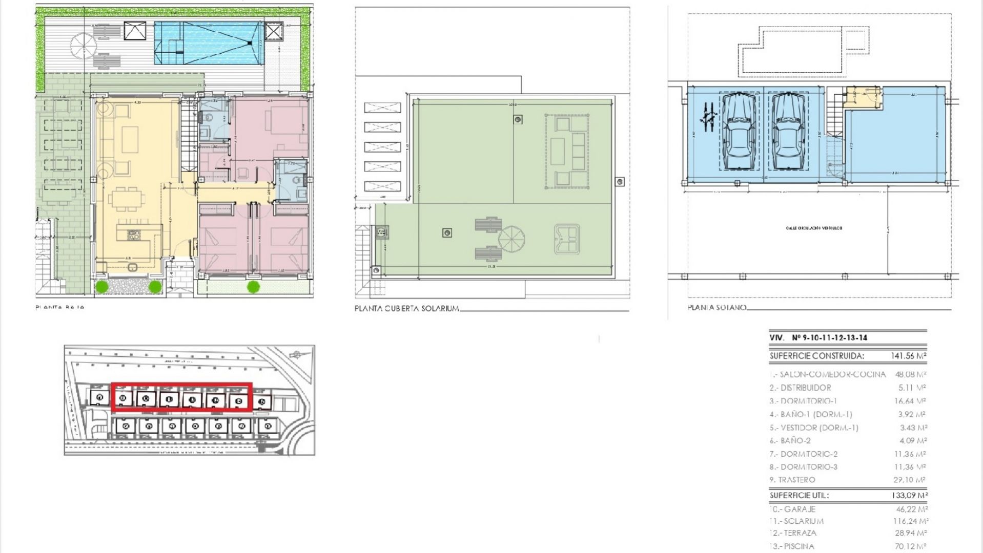
Las villas cuentan con 141,56 m² de superficie construida en una sola planta, diseñadas para maximizar comodidad y amplitud. Disponen de 3 dormitorios y 2 baños, un salón espacioso y luminoso y una cocina totalmente equipada. Desde el salón y el dormitorio principal se accede directamente a la terraza, la piscina privada y el jardín, con parcelas desde 247,56 m² hasta 327,71 m2, creando una conexión perfecta entre interior y exterior. Los otros dos dormitorios cuentan con salida a una amplia terraza posterior de 28,94 m², aportando privacidad y luminosidad adicional. En la planta superior se encuentra un espectacular solárium privado de 116,4 m², ideal para disfrutar del sol durante todo el año, crear una zona chill out o contemplar las vistas abiertas hacia las lagunas y el entorno natural. Desde el interior de la vivienda, una escalera conduce al sótano, donde se ubica un amplio garaje privado con capacidad para 2 o 3 vehículos, con superficies que van desde 45,9 m² hasta 92,6 m², además de estancias adicionales multifuncionales de 29,1 m² a 60 m², perfectas para gimnasio, sala de ocio, despacho o apartamento independiente.
La ubicación es estratégica: cerca de playas, centros comerciales, colegios, servicios médicos y campos de golf, con excelente conexión por carretera y a aproximadamente 45 minutos del aeropuerto de Alicante.
Los precios de estas exclusivas villas oscilan entre 595.000 € y 645.000 €, representando una oportunidad única para quienes buscan una propiedad de alto nivel con piscina privada, amplios espacios y vistas privilegiadas en una de las zonas más demandadas de Torrevieja.
Un hogar pensado no solo para vivir, sino para disfrutar cada día del auténtico estilo de vida mediterráneo.








































