Te presentamos este exclusivo bungalow en planta alta, situado en la codiciada zona de Los Balcones, junto a Torrevieja, al sur de la provincia de Alicante, donde la modernidad se encuentra con la naturaleza en un entorno privilegiado. Esta vivienda luminosa y lista para entrar a vivir ofrece vistas abiertas a la Laguna Rosa, brindando una experiencia de vida única que combina confort y belleza natural. Con un diseño contemporáneo que destaca por su funcionalidad, este bungalow se convierte en el refugio ideal para quienes buscan un estilo de vida sofisticado en la Costa Blanca.
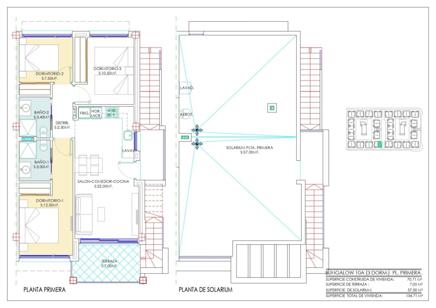
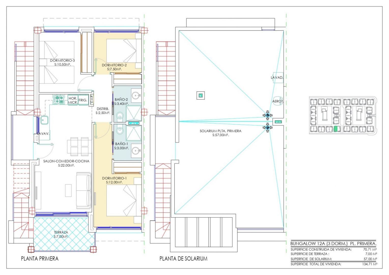
La propiedad cuenta con 70 m² de superficie interior, distribuidos en 3 dormitorios y 2 baños, lo que permite una organización cómoda y práctica para el día a día. En la planta principal, una encantadora terraza de 7 m² invita a disfrutar de desayunos al sol, mientras que en la planta superior se encuentra un impresionante solárium privado de 57 m², alcanzando una superficie total aproximada de 134,90 m², perfecto para relajarse y disfrutar de la tranquilidad del entorno. Cada rincón de esta vivienda ha sido diseñado para maximizar la luz natural y la conexión con el exterior, creando un ambiente acogedor y elegante.
Invertir en este bungalow no solo significa adquirir una propiedad, sino también un estilo de vida que promueve la tranquilidad y el bienestar, en una de las zonas más demandadas de Torrevieja. La cercanía al Parque Natural de las Lagunas de Torrevieja y La Mata añade un valor incalculable, convirtiendo este lugar en un refugio donde la naturaleza y el confort se entrelazan. Además, la ubicación estratégica, a solo 3 km de las playas y a 5 km de campos de golf, garantiza un acceso fácil a las mejores experiencias que la Costa Blanca tiene para ofrecer.
En Antaal Life, estamos comprometidos a acompañarte en cada paso del proceso de búsqueda de tu vivienda ideal, brindándote un servicio profesional y cercano que te permitirá tomar la mejor decisión. No dudes en contactar con nuestros agentes inmobiliarios, quienes están listos para ayudarte a descubrir este exclusivo bungalow y hacer realidad tus sueños de vivir en un entorno privilegiado.







































