Nueva promoción residencial situada en Torrevieja, a tan solo 150 metros del mar, en pleno centro urbano y a escasos pasos de toda la oferta de ocio, restaurantes y servicios (aproximadamente 100 metros). Una ubicación privilegiada que permite disfrutar del Mediterráneo y de la vida urbana sin necesidad de vehículo. El edificio, de arquitectura contemporánea y líneas elegantes, ofrece viviendas diseñadas para maximizar la luz natural y el confort. El residencial dispone de zona verde comunitaria y piscina comunitaria ubicada en el solárium, un espacio exclusivo donde relajarse con vistas abiertas y disfrutar del clima de la Costa Blanca durante todo el año.
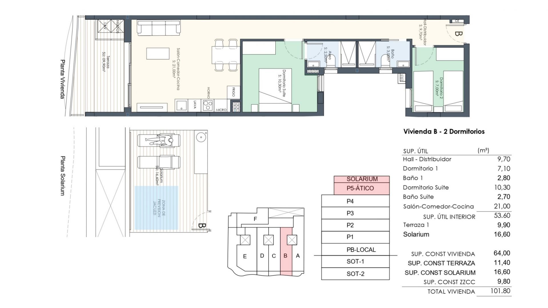
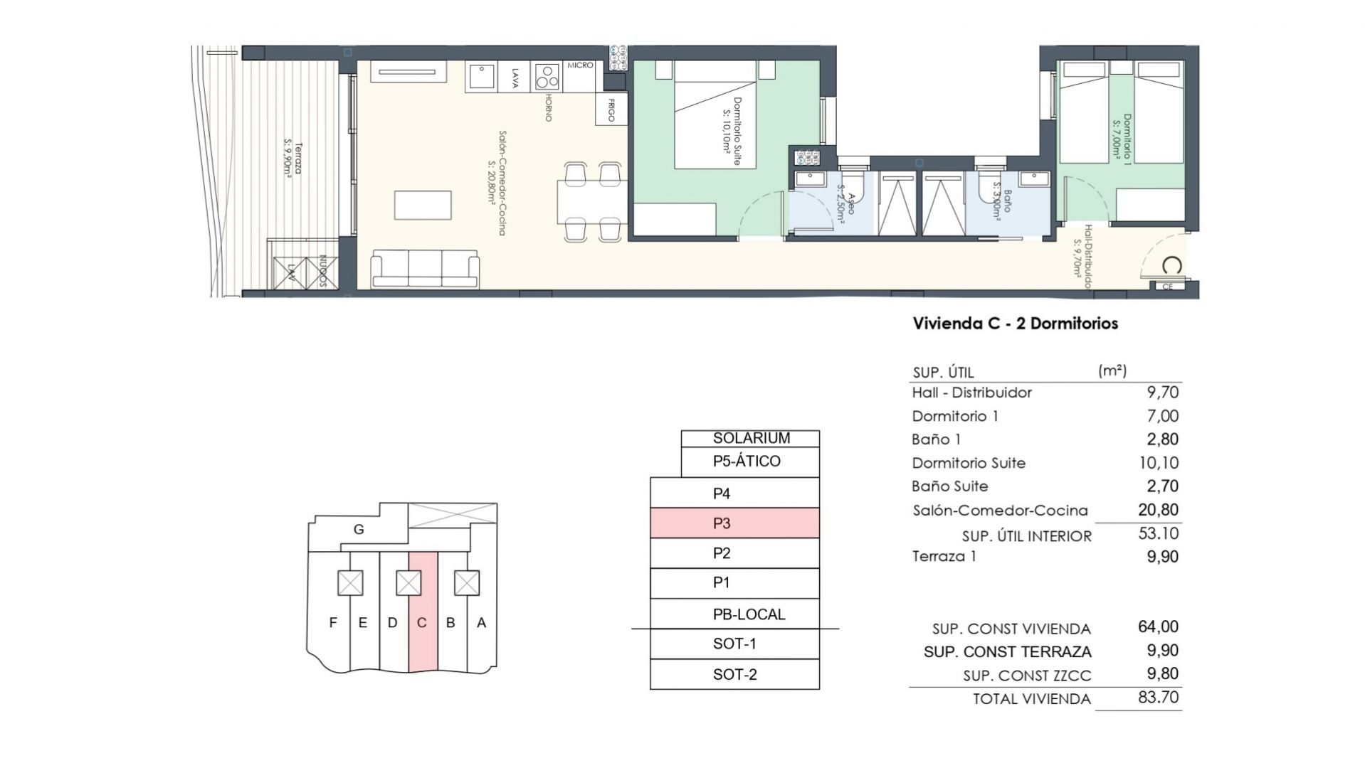
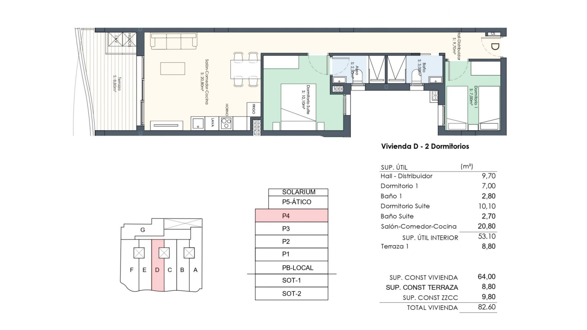
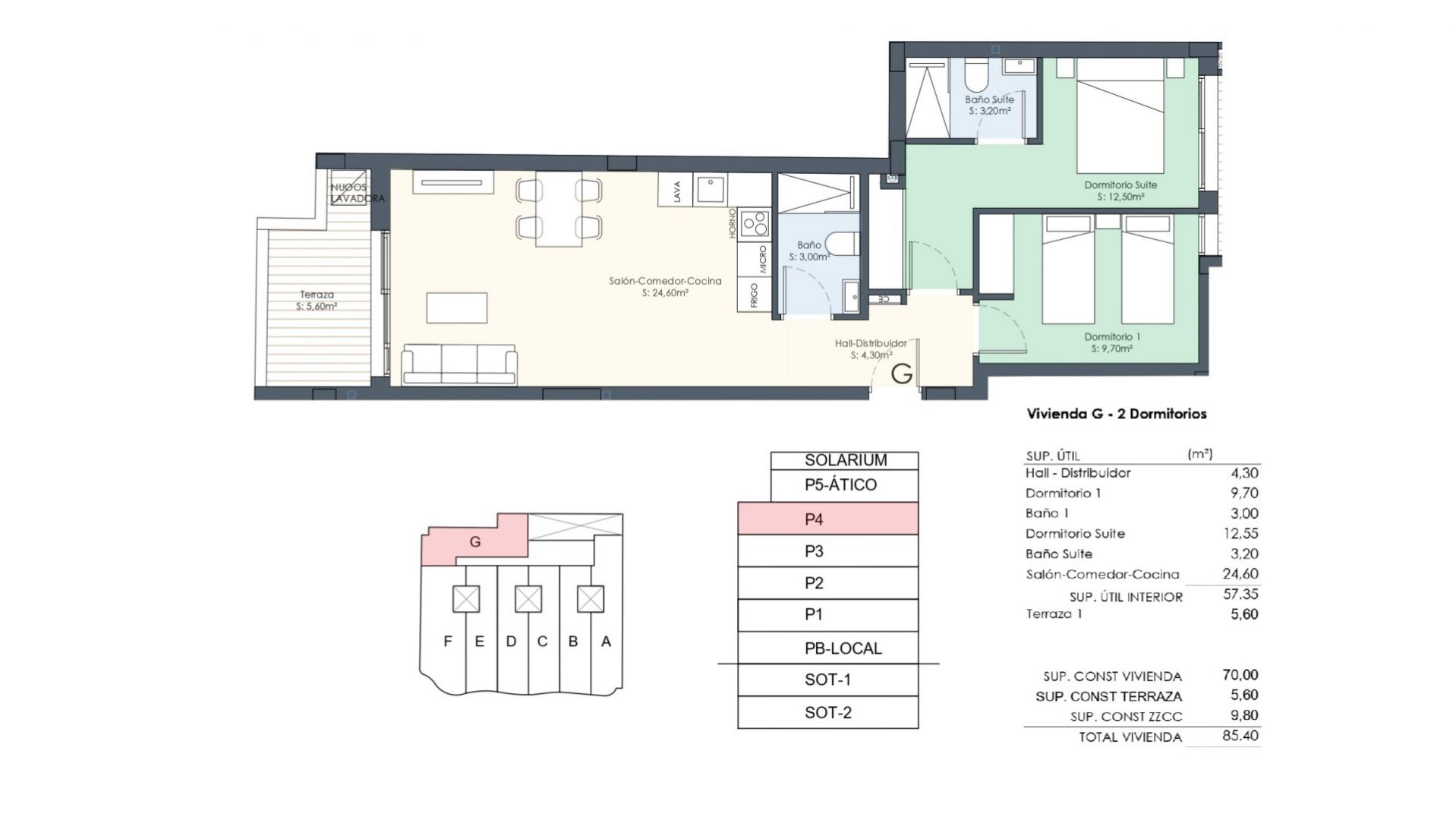
Se ofrecen apartamentos de 2 dormitorios y 2 baños, distribuidos entre la primera y la cuarta planta, con superficies desde 53,10 m² hasta 57,35 m² y terrazas privadas de 5,60 m² a 11 m². Las viviendas cuentan con cocina abierta, concepto moderno que integra salón y comedor, creando espacios amplios y funcionales. Precios desde 319.000 € hasta 399.000 €.
También disponibles áticos dúplex de 53,60 m², con terraza en planta principal de 9,90 m² y solárium privado de 16,60 m², ideales para quienes buscan mayor privacidad y espacio exterior. Precio: 469.000 €.
Las viviendas incluyen preinstalación de aire acondicionado, puerta de seguridad, portero automático y excelentes calidades orientadas al confort y la eficiencia. Existe opción de plaza de garaje.
La distancia al aeropuerto es de aproximadamente 40 km, lo que garantiza excelentes conexiones nacionales e internacionales.
Una propuesta ideal tanto como residencia habitual, segunda vivienda junto al mar o inversión en una de las zonas más dinámicas y consolidadas de la Costa Blanca.


























