Este nuevo complejo residencial cerrado se sitúa en Punta Prima, al sur de la provincia de Alicante, a tan solo 350 metros del mar, en una de las zonas más demandadas de la Costa Blanca. Su ubicación es especialmente cómoda: a poca distancia a pie se encuentran supermercados, comercios, restaurantes, bancos y todos los servicios necesarios para la vida diaria, además de un agradable paseo marítimo ideal para disfrutar del entorno junto al mar. La zona dispone de paradas de autobuses escolares y de línea regular, se encuentra a 10 minutos del centro de Torrevieja y a aproximadamente 45 minutos del aeropuerto.
El residencial ofrece apartamentos de 2 y 3 dormitorios con 2 baños, concebidos para combinar confort, funcionalidad y un alto nivel de calidad constructiva. Todas las viviendas forman parte de una urbanización completamente cerrada y segura, con acceso directo desde garajes y trasteros mediante ascensores adaptados.
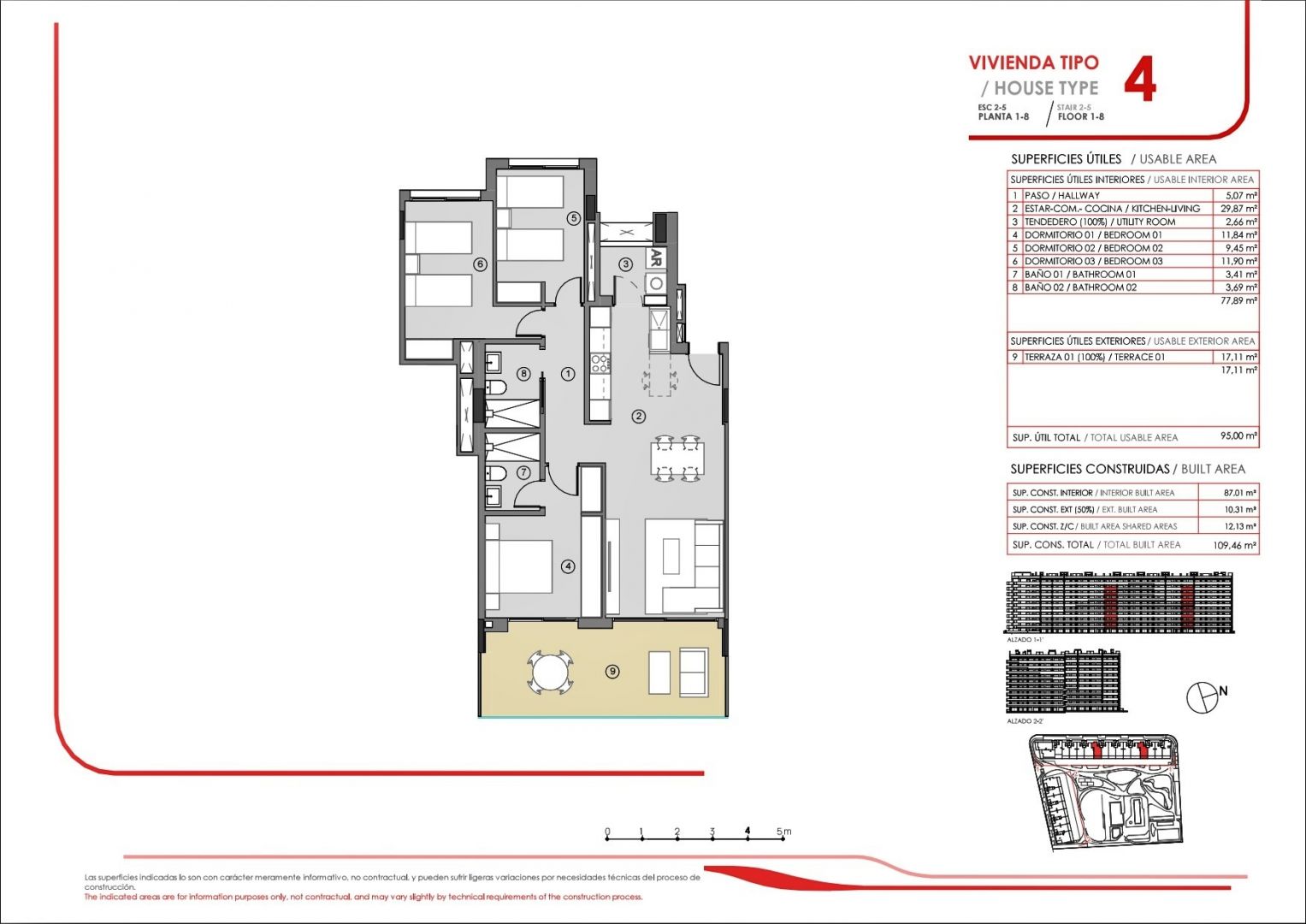
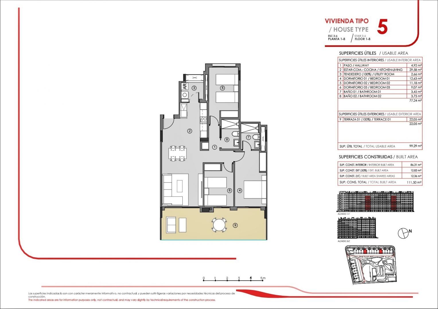
En el caso de los apartamentos de 3 dormitorios y 2 baños, se presentan distintas tipologías que se adaptan a diferentes estilos de vida. Las viviendas en planta baja cuentan con amplias terrazas y jardín privado, disponibles a precios entre 324.000 € y 399.000 €. Asimismo, se ofrecen apartamentos situados desde la primera hasta la octava planta, muchos de ellos con vistas al mar, con precios que oscilan entre 314.000 € y 419.000 €, destacando por su comodidad, ubicación privilegiada y excelentes vistas.
Las viviendas destacan por sus excelentes calidades: estructura de hormigón armado, fachadas modernas con cerramientos de alta eficiencia térmica y acústica, carpintería exterior en PVC con rotura de puente térmico, doble acristalamiento tipo Climalit, persianas motorizadas en dormitorios y barandillas de vidrio. En el interior cuentan con suelo porcelánico de gran formato, pintura lisa, puertas lacadas, armarios empotrados totalmente equipados y puerta de entrada acorazada.
Las cocinas se entregan completamente equipadas con mobiliario alto y bajo, encimeras tipo Corian, electrodomésticos integrados de alta gama y un diseño moderno y funcional. Los baños disponen de sanitarios suspendidos, platos de ducha de resina con mamparas de cristal, muebles de lavabo, espejos y suelo radiante eléctrico, aportando un extra de confort.
El sistema de climatización y agua caliente se realiza mediante aerotermia de alta eficiencia, con distribución por conductos y control mediante termostato. La vivienda incorpora además videoportero, preinstalación para domótica, iluminación en terrazas, cocina y baños, y completas instalaciones de telecomunicaciones.
Las zonas comunes convierten este residencial en un auténtico complejo de bienestar, con amplias áreas ajardinadas, paseos peatonales iluminados, tres piscinas (adultos, infantil y piscina climatizada de nado con apoyo solar), jacuzzi, gimnasio, sauna, pista de pádel, zonas biosaludables, petanca, ajedrez, ping-pong, área infantil y aparcamiento para bicicletas.
Cada vivienda incluye plaza de aparcamiento subterránea y trastero, con acceso mediante puertas automáticas y preinstalación para carga de vehículos eléctricos.
Una promoción de alto nivel, ideal tanto para residencia habitual como para segunda vivienda o inversión, que combina cercanía al mar, servicios completos, calidad constructiva y un entorno cuidado en una de las mejores zonas del sur de Alicante.





















