Nueva promoción residencial ubicada en Torrevieja, a tan solo 150 metros del mar, en pleno centro y a aproximadamente 100 metros de zonas de ocio, restaurantes y todos los servicios esenciales. Una ubicación excepcional para vivir todo el año o disfrutar de estancias junto al Mediterráneo. El edificio destaca por su arquitectura contemporánea y su diseño funcional, con espacios pensados para aprovechar al máximo la luz natural y la comodidad. El residencial dispone de zona verde comunitaria y una piscina comunitaria en el solárium, un espacio exclusivo para relajarse y disfrutar del clima privilegiado de la Costa Blanca.
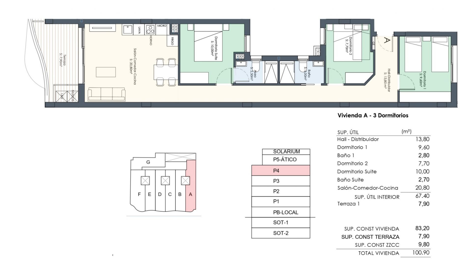
Se ofrecen apartamentos de 3 dormitorios y 2 baños, con superficies construidas desde 67,40 m² hasta 80,60 m², y terrazas privadas que oscilan entre 7,90 m² y 15,30 m². Las viviendas cuentan con cocina abierta integrada en el salón-comedor, creando un ambiente amplio, moderno y acogedor. Los precios se sitúan entre 425.000 € y 439.000 €, según planta y características.
Las propiedades incluyen preinstalación de aire acondicionado, puerta de seguridad, portero automático y acabados de calidad. Existe opción de plaza de garaje.
La distancia al aeropuerto es de aproximadamente 40 km, facilitando excelentes conexiones internacionales.
Una oportunidad ideal para quienes buscan una vivienda amplia, moderna y perfectamente ubicada, a escasos pasos del mar y en una de las zonas con mayor demanda de la Costa Blanca.













